Iserbarg



Raumstruktur
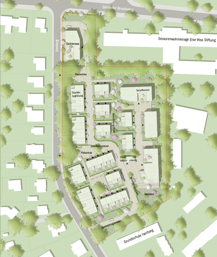
Das städtebauliche Konzept ermöglicht eine Vielzahl unterschiedlicher Freiräume, die von großzügigen Platzflächen über breite Spielstraßen bis hin zu schmalen Erschließungswegen reicht. Diese bieten Raum für Stadtteil- und Straßenfeste, Treffpunkte für alle Generationen und ruhige Rückzugsorte. Über diese Räume hinaus sind zwei Kinderspielplätze mit unterschiedlicher Ausprägung als Spielhügel bzw. -mulde vorgesehen. Gartenmauern in Sitzhöhe und Einzelbänke an geeigneten Plätzen erweitern die Nutzung der beschriebenen Räume. Fahrradstellplätze sind jeweils an Gebäudeeingängen und Besucherstellplätze für PKWs entlang der Erschließungsstraße vorgesehen.
Pflanzkonzept
Der Ausgangspunkt für die Bepflanzung des neuen Wohnquartiers ist der wertvolle alte Baumbestand aus Stieleichen, Rotbuchen und Kiefern, der die neuen Gebäude umgibt und das Gerüst bildet.
Mittelkronige Laubbäume (Silberlinden und Amberbäume) bilden die zweite neue Etage. Sie sind als Akzente an besonderen Orten gesetzt, wie beispielsweise auf den Platzflächen im Quartier.
Die dritte Etage bilden kleinkronige Laubbäume (Zierobst, Vogel- und Mehlbeere sowie Feldahorn) mit auffälligen Blüten, die in Reihen gesetzt Grenzen betonen.
Die vierte Ebene besteht aus 2 - 3 m hohen Blütensträuchern (Gartenflieder, Felsenbirne und Wildrosenarten), die private und gemeinschaftliche Außenräume zonieren und gliedern. Ergänzt werden diese durch 1 m hohe Laubhecken aus Hainbuche und Feldahorn, die solche Grenzen betonen.
Fünfte und letzte Etage bilden die unbefestigten Gartenflächen, die mit Rasenansaat bzw. immergrünen Bodendeckern an schattigen Standorten begrünt und mit Blumenzwiebeln angereichert sind. Ebenfalls grüne Flächen stellen die extensiv mit Sedumarten begrünten Dächer der Wohngebäude dar.
Versickerung
Im Quartier wird das auf Dachflächen ankommende Regenwasser durch die extensive Begrünung aufgenommen. Verzögert wird es an ein System aus in Nord-Süd-Richtung verlaufenden Rasenmulden abgegeben. Die Mulden führen das Wasser in die Südhälfte des Grundstücks, wo laut Gutachten von ISB aufgrund der Bodenverhältnisse eine Versickerung gegeben ist. Dort ist ein entsprechend dimensioniertes unterirdisches Rigolensystem vorgesehen.
Materialkonzept
Die öffentliche Verkehrsfläche im neuen Wohnquartier soll im Gegensatz zur Straßenoberfläche im Iserbarg mit einem Betonpflaster befestigt werden, um den Charakter einer fußgängerfreundlichen Wohnstraße zu betonen. Für die Stellplätze verwenden wir ein offenporiges Betonpflaster mit 3 cm Rasenfuge.
Um die gemeinschaftlichen Platzflächen im Quartier als Treffpunkte für die Bewohner*innen hervorzuheben, sollen diese in einem Granitplattenbelag hergestellt werden.
Diese sollen die Verkehrsflächen gliedern.
Müllentsorgung
In der Quartiersmitte sind auf einer Platzfläche gemäß der vorgegebenen Müllberechnung fünf Unterflurcontainer à 3 m3 für alle vier Müllarten vorgesehen. Die zentrale Lage gewährleistet für alle Bewohner einen möglichst kurzen Weg zur Müllentsorgung.